Pronto

SOBRADO COMERCIAL VILA HORTENCIA – SOROCABA

Vila Hortência

260m² Privativa
154.5m² Total
6 banheiros

Sobrado comercial com 4 salões independentes.

Já alugados e gerando renda mensal de R$6.018,00

Salão 1= 70m2

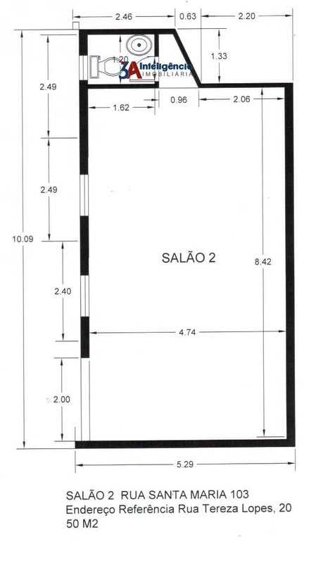
Salão 2= 50m2

Salão 3= 40m2

Salão 4= 80m2

Localizado no coração da Vila Hortência, próximo a escolas, mercados, padarias, farmácias com fácil acesso à rodovia Raposo Tavares e ao centro da cidade

Terreno 5,15m x 30m

Código do Imóvel: 170332

Simule agora seu financiamento

Faça uma cotação com os principais bancos do mercado agora mesmo:

Simular em todos bancos
essa simulação é um oferecimento da Vivalisto, em parceria com 3A Inteligência Imobiliária
not found google-places
R$ 1.000.000
Quero saber mais:
Tendencia
Alta procura
25 pessoas viram esse imóvel recentemente, não perca tempo!

Posso te ajudar a encontrar o imóvel ideal

Deixe seus dados de contato que irei te atender de forma especial

x